Jette 1090, Jette, Belgique

546.000€
Type de bien: immeuble à appartements (Référence: 7331070)
Surface (M 2)
233
Chambres
5
Salles d'eau
4
Terrasse/Jardin
Terrasse

Votre agent immobilier

Walid Skhiri

Informations

  • Année de construction: 1950
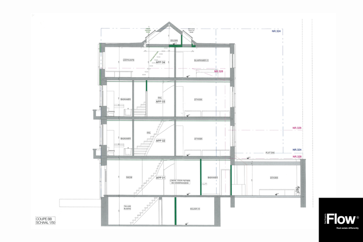
  • nombre d'étages: 3
  • Nbre de toilette(s): 4
  • nombre de sdd: 4
  • chambre 1: 16
  • chambre 2: 18.5
  • chambre 3: 16.5
  • chambre 4: 14
  • chambre 5: 9
  • Précompte immobilier: 2665.17
  • largeur de façade: 5.65
  • châssis: pvc
  • surface de terrasse 1: 14
  • Nbre de terrasse(s): 1
  • chauffage: Pas installé

Caractéristiques

  • Autoroute
  • câbles téléphoniques
  • Cave
  • Centre sportif
  • double vitrage
  • eau
  • Ecoles
  • égouts
  • électricité
  • gaz
  • Magasins
  • télévision par cable
  • Transports en commun
  • Volets

Description

Immeuble de rapport situé à proximité immédiate de la Place du Miroir, un quartier recherché, proche des commerces, des écoles, des restaurants et des transports en commun.

Situation stratégique avec une excellente accessibilité : tram 9 (UZ Brussel, Brussels Health Campus – Grand-Bigard), tram 19 (Simonis – Grand-Bigard), bus de la STIB et gare ferroviaire à distance de marche. Liaison rapide vers la gare de Jette, Simonis, le centre de Bruxelles et les principaux axes routiers.

Ce bien, composé de 4 unités d’habitation reconnues par l’urbanisme, constitue une opportunité d’investissement idéale pour ceux qui recherchent un fort potentiel de plus-value après rénovation.

L’immeuble est vendu entièrement à l’état CASCO, avec une finition intérieure complète encore à réaliser (installations sanitaires et électriques, salles de bains et cuisines, etc.).

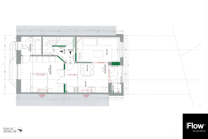
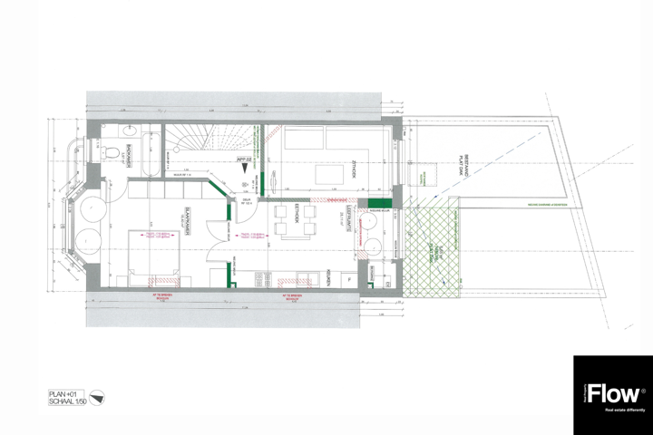
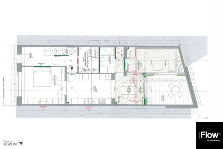
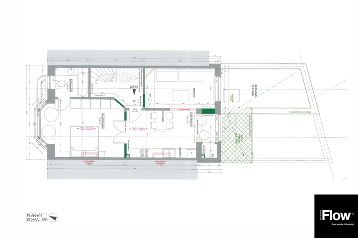
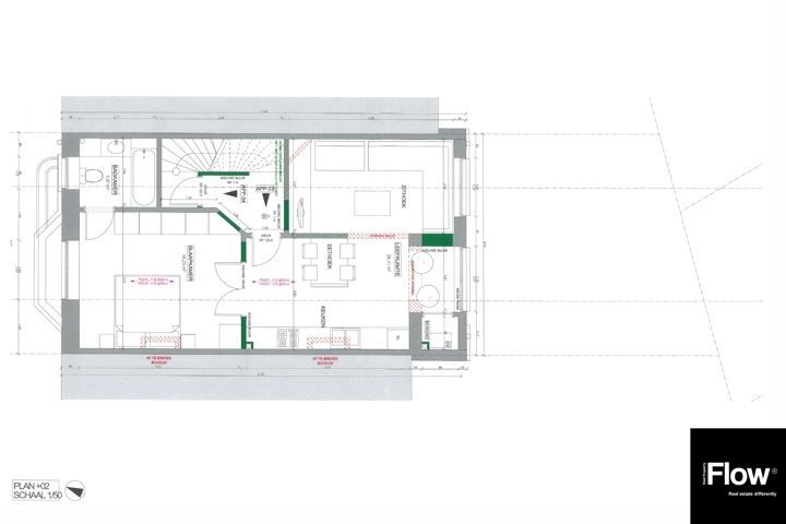
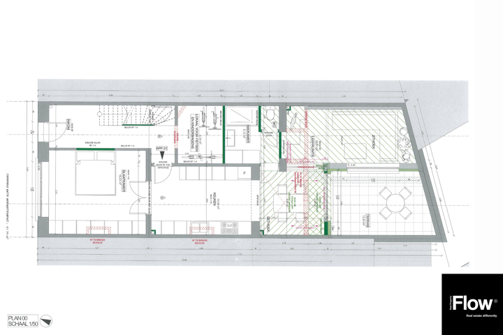
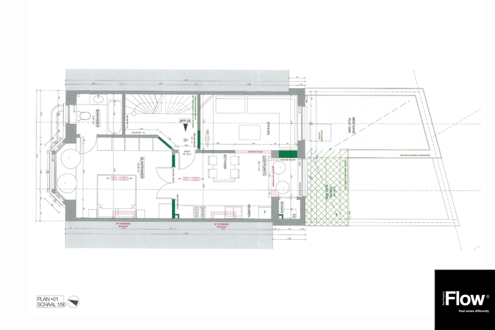
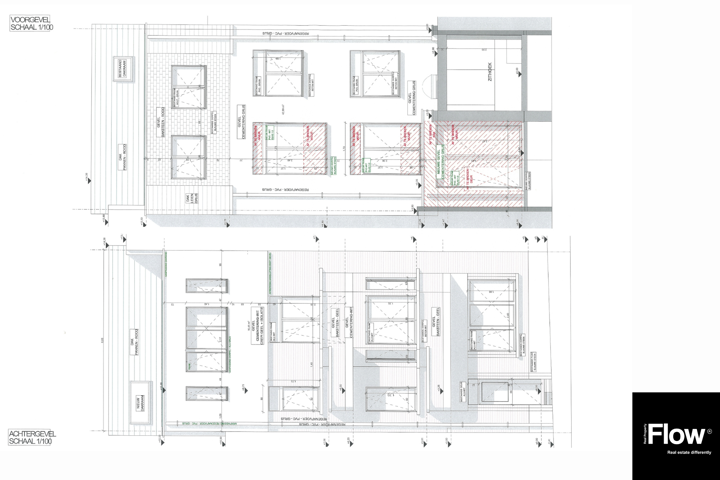
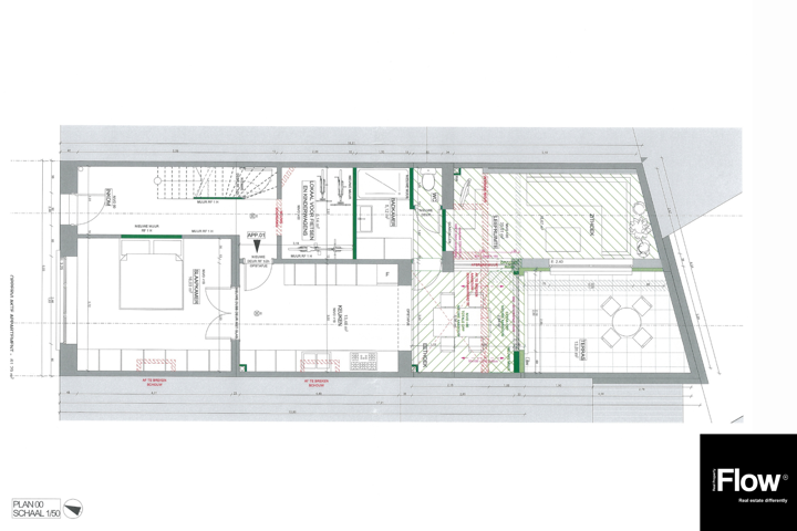
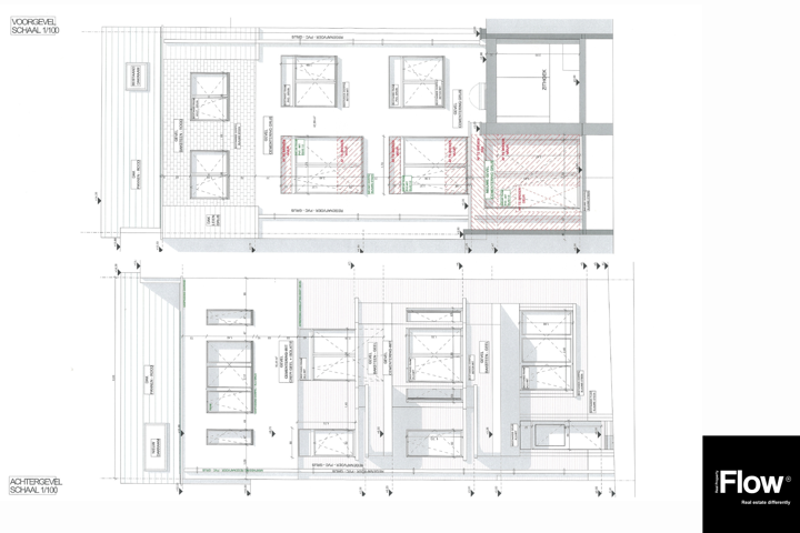
Surface habitable totale d’environ 233 m² (hors caves, débarras, local vélos, cage d’escalier, terrasse et cour), répartie comme suit :

  • Rez-de-chaussée : ± 70 m²

  • 1er et 2e étages : chacun ± 50 m²

  • 3e étage : ± 63 m² (avec mezzanine et chambre supplémentaire)

Principaux atouts :

  • Immeuble de rapport avec 4 unités d’habitation reconnues

  • Emplacement de premier choix à proximité de la Place du Miroir (Jette)

  • Très bien desservi par les transports en commun

  • Structure solide et stable

  • Projet de rénovation à fort potentiel de rendement

  • Idéal pour investisseur, promoteur ou projet immobilier à long terme

Informations et visites
FLOW Real Property
0484 / 902.666

Dossier complet (renseignements urbanistiques et plans) disponible sur demande.

Formulaire de contact






    fr_FRFrançais