Pierre Strauwen 1020, Bruxelles, Belgique

420.000€
Type de bien: Maison (Référence: 7308530)
Surface (M 2)
188
Chambres
5
Salles d'eau
1
Terrasse/Jardin
Terrasse

Votre agent immobilier

Walid Skhiri

Informations

  • Année de construction: 1920
  • nombre d'étages: 3
  • orientation du bâtiment: sud-est
  • largeur front de rue: 5.2
  • surface bâtie: 55
  • chauffage (ind/coll): individuel
  • Nbre de toilette(s): 2
  • nombre de sdd: 1
  • chambre 1: 24
  • chambre 2: 14
  • chambre 3: 14
  • chambre 4: 14
  • chambre 5: 12
  • magasins: 250
  • écoles: 300
  • transports en commun: 70
  • plage: 110000
  • centre sportif: 300
  • Précompte immobilier: 1211.2
  • Revenu cad. indexé: 2399
  • largeur de façade: 5.2
  • châssis: bois ou pvc
  • Type d'environnement: calme
  • surface de terrasse 1: 41
  • type de toit: en pente
  • Nbre de terrasse(s): 3
  • Salle de séjour: 23
  • Cuisine: 14
  • chauffage: gaz
  • Type d'environnement 2: résidentiel
  • orientation de la terrasse 1: sud-est
  • type de cuisine: semi-équipée
  • sdb: bain
  • Revenu cadastral (€): 1069
  • affectation urbanistique: zone d'habitat
  • Exposition de la façade avant: nord-ouest
  • certificat d'électricité: oui, non conforme
  • Autoroute: 1300
  • Certificat électricité - date: 07/10/2025
  • Label PEB: D
  • PEB E-SPEC (kwh/m²/an): 210
  • Emission CO2: 41
  • risque d'inondation: zone innondable potentielle
  • E total: 210
  • PEB code unique: 20250512‐0000713979‐01‐0
  • type d'intimation: pas de correction juridique ou mesure administrative imposée
  • PEB valide jusqu'au: 05/12/2035 00:00
  • Date du PEB: 05/12/2025 00:00
  • surface balcony 1: 41
  • surface balcony 2: 4

Caractéristiques

  • attestation du sol
  • Autoroute
  • buanderie
  • câbles téléphoniques
  • Cave
  • Centre sportif
  • cuisine
  • double vitrage
  • eau
  • Ecoles
  • égouts
  • électricité
  • gaz
  • Magasins
  • parlophone
  • Permis de bâtir
  • Permis de lotir
  • Plage
  • télévision par cable
  • Transports en commun

Description

A proximité de l’Atomium, le bureau FLOW Real Property vous présente cette maison de maître de 5 chambres de 188 m2 (selon PEB) présentant énormément de potentiel. Celle-ci est idéale pour les investisseurs ou les familles ayant besoin d’espace.

Le bien se compose comme suit:
A l’entre-sol: un hall, une chambre (+/- 14 m2), une salle de bain, deux pièces de stockage et un WC séparé.
REZ-DE-CHAUSSÉE: un hall, un séjour de +/- 23 m2, une cuisine équipée (four, taque au gaz, hotte, micro-ondes, lave-vaisselle) de +/- 14 m2 et une terrasse de +/- 41 m2 (sud-est).
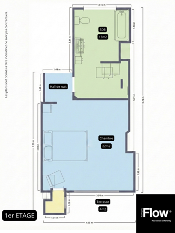
Au 1er ETAGE: un hall, une chambre (+/- 24 m2), une salle de bain, un balcon et une terrasse.
Au 2e ETAGE: un hall, deux chambres (+/- 14 m2 et +/- 14 m2) et une pièce polyvalente.
Au 3e ETAGE: combles (+/- 12 m2).

Un compteur de gaz. Un compteur d’électricité. Un compteur d’eau. Double vitrage bois et PVC. Parlophones. Thermostat. Insert à bois. PEB: D- (210 kWh – 41 CO2). Electricité non-conforme.

Faire offre à partir de 420.000€ sous réserve d’acceptation du propriétaire.

Pour plus d’informations ou pour organiser une visite, rendez-vous sur www.flowrealproperty.be ou contactez-nous au 0484/90.26.66.

Formulaire de contact






    fr_FRFrançais